Kopfzeile

Attraktive Kapitalanlage: Wohn- und Geschäftshaus in Goslar Innenstadt mit stabilen Einnahmen und Entwicklungspotenzial

Haus zum Kauf in Goslar (38640) / Objektnummer: 5577#O8BHk

Haus zum Kauf in Goslar (38640) 610.000 €

12 Zimmer

5 Badezimmer

305 m² Wohnfläche

247 m² Nutzfläche

147 m² Grundfläche

Zentralheizung
Das im Jahr 1982/1983 auf einem Eigentumsgrundstück errichtete, voll unterkellerte Wohn- und Geschäftshaus umfasst insgesamt 5 Wohneinheiten mit einer Gesamtwohnfläche von etwa 305 m² sowie eine Gewerbeeinheit mit einer Nutzfläche von 101 m². Die Wohnungen überzeugen durch helle, gut geschnittene Räume und bieten ein komfortables und vielseitig nutzbares Wohnumfeld.

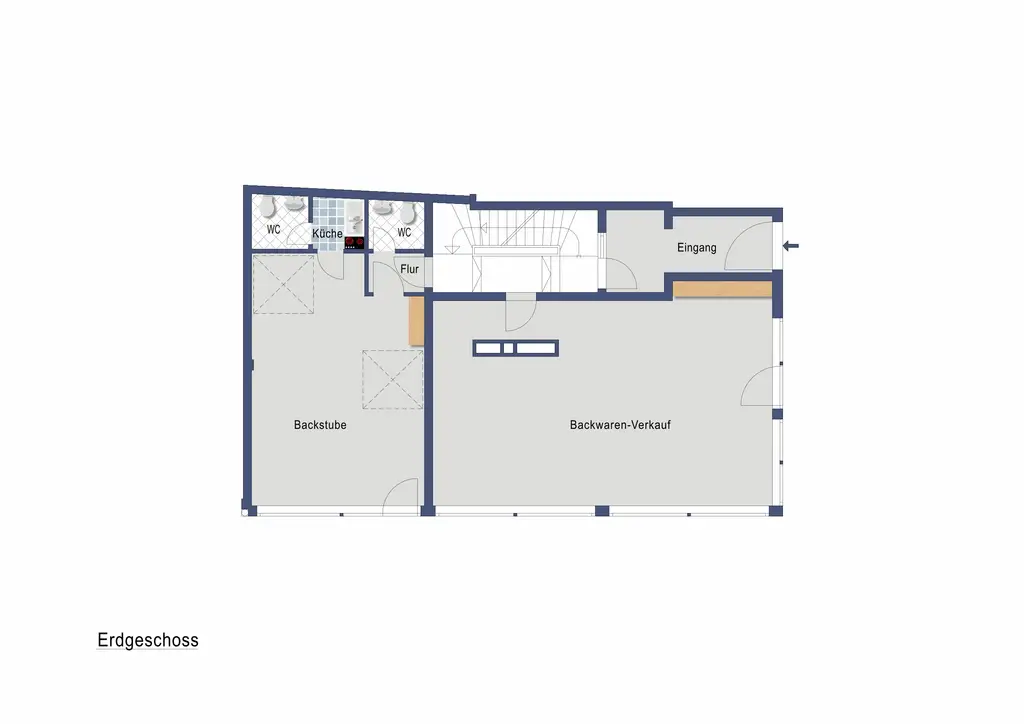
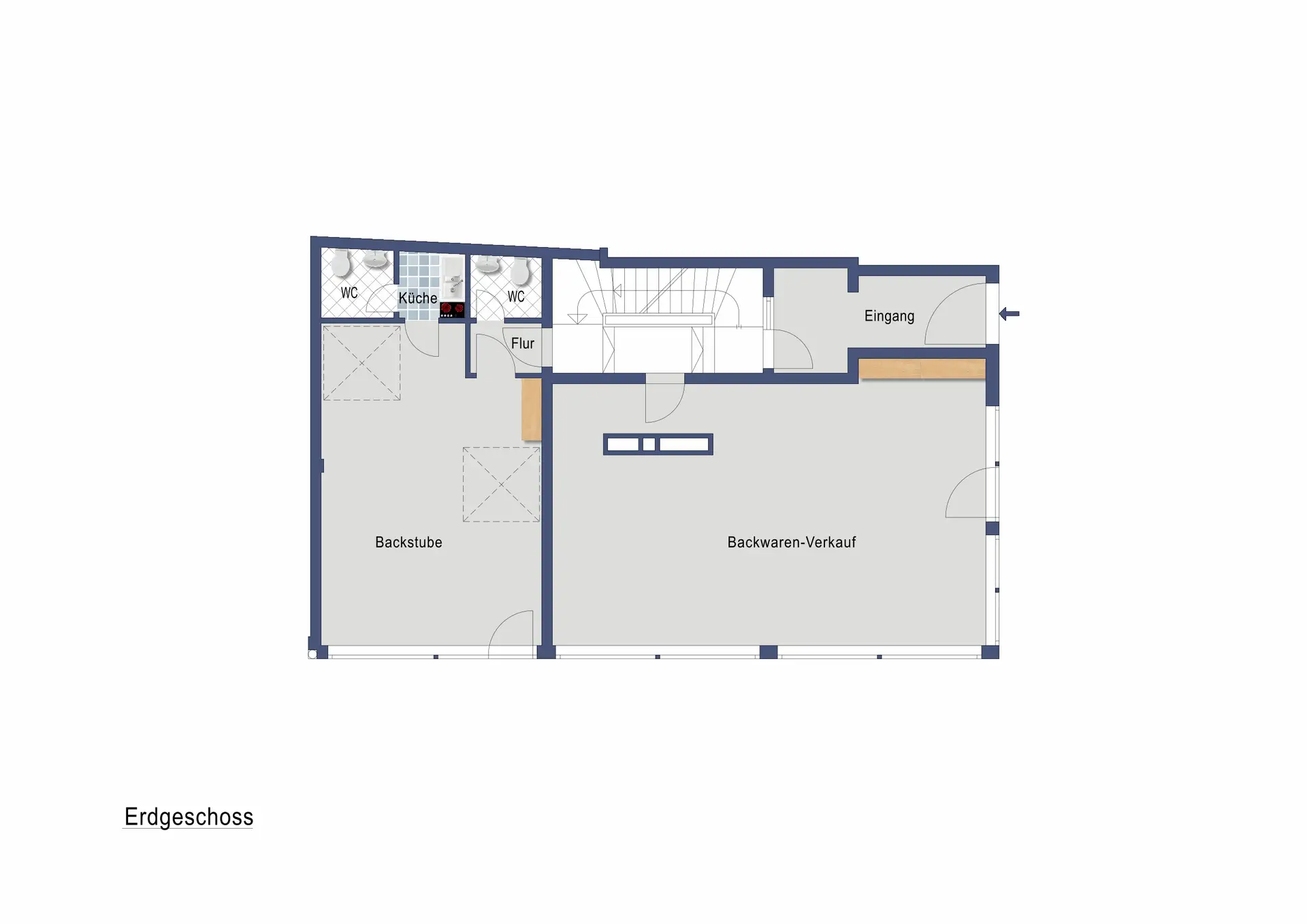
Erdgeschoss:
Die Gewerbeeinheit im Erdgeschoss hat eine Fläche von ca. 101 m² und besteht aus:
Verkaufsraum mit Verkaufstresen, Backstube, Küche, WC-Laden, WC sowie Flur.
Zusätzlich werden dem Mieter ein Kellerraum (Lagerraum ca. 14 m²) und ein Keller-/Lagerraum (ca. 40 m²) zur Nutzung bzw. zur Mitbenutzung überlassen.
Die Einheit ist ungekündigt vermietet.
Monatliche Kaltmiete: 700,00 €

1. Obergeschoss:
Wohnung Nr. 3 (links, 2-Zimmer-Wohnung, ca. 58 m²), bestehend aus
Wohnbereich, Essplatz, Schlafbereich, Küche, innenliegendem Bad mit Dusche und WC, Abstellfläche und Flur.
Ungekündigt vermietet.
Monatliche Kaltmiete: 300,00 €
Wohnung Nr. 4 (rechts, 2-Zimmer-Wohnung, ca. 53 m²), bestehend aus
Wohnbereich, Essplatz, Schlafbereich, Küche, innenliegendem Bad mit Dusche und WC, Abstellfläche und Flur.
Ungekündigt vermietet.
Monatliche Kaltmiete: 360,00 €

2. Obergeschoss:
Wohnung Nr. 1 (links, 2-Zimmer-Wohnung, ca. 58 m²), bestehend aus
Wohnbereich, Essplatz, Schlafbereich, Küche, innenliegendem Bad mit Dusche und WC, Abstellfläche und Flur.
Ungekündigt vermietet.
Monatliche Kaltmiete: 450,00 €
Wohnung Nr. 2 (rechts, 2-Zimmer-Wohnung, ca. 53 m²) bestehend aus
Wohnbereich, Essplatz, Schlafbereich, Küche, innenliegendem Bad mit Dusche und WC, Abstellfläche und Flur.
Ungekündigt vermietet.
Monatliche Kaltmiete: 450,00 €

Dachgeschoss:
Die Dachgeschosswohnung (ca. 85 m²) verfügt über eine Galerie/schöner Eingangsbereich, zwei Zimmer, einem großen Wohnbereich, Essplatz, Küche, Duschbad, Schlafbereich, Abstellfläche und Flur.
Besonders hervorzuheben ist der atemberaubende Blick über die Stadt.
Ungekündigt vermietet.
Monatliche Kaltmiete: 650,00 €

Alle Wohnungen sowie die Gewerbeeinheit sind vermietet. Die aktuelle Jahresnettomiete beträgt 34.920,00 €.

Kellergeschoss:
Hier befinden sich fünf Abstellbereiche für die Wohnungsmieter, ein großer Kellerraum für die Gewerbeeinheit, ein weiterer Abstellraum sowie der Heizungsraum.

Die Liegenschaft zeichnet sich durch ihre zentrale Lage und eine angenehme Hausgemeinschaft aus.

Das Gebäude verfügt über eine solide Bausubstanz und steht nicht unter Denkmalschutz.

Zur Wahrung der Privatsphäre der derzeitigen Mieter können im Exposé ausschließlich Aufnahmen der Bäder sowie der beiden im Eigentum der Verkäuferin befindlichen Einbauküchen veröffentlicht werden. Um sich jedoch ein umfassendes Bild von der Immobilie und deren Potenzial zu machen, empfehlen wir eine persönliche Besichtigung vor Ort.

Dieses voll vermietete Wohn- und Geschäftshaus im Herzen von Goslar bietet 5 Wohneinheiten und eine Gewerbeeinheit, die alle ungekündigt vermietet sind. Mit stabilen Mieteinnahmen, zentraler Lage und solider Bausubstanz stellt es ein renditestarkes Investment dar.

Ausstattung

Das Wohn- und Geschäftshaus wurde in den Jahren 1982/1983 in Massivbauweise errichtet. Das Dach ist gemäß Baubeschreibung als Pfettendach mit Holzbalkendecke nach statischen Erfordernissen ausgeführt. Die Dachhaut besteht aus Schalung, Pappe, Konterlattung, Dachlatten und Frankfurter Pfannen. Die Gaszentralheizung der Firma Buderus stammt aus dem Baujahr 1985. Im Jahr 2015 erfolgte die Umnutzung eines bestehenden Versicherungsbüros zu einer Backstube mit Verkaufsraum.

Lage und Verkehrsanbindung

Das Wohn- und Geschäftshaus befindet sich in der Petersilienstraße 10, 38640 Goslar. Sie liegt innerhalb der historischen Altstadt, die zum UNESCO-Weltkulturerbe zählt. Die nähere Umgebung ist geprägt durch eine geschlossene, überwiegend denkmalgeschützte Bebauung mit gemischter Nutzung aus Wohnen, kleinteiligem Einzelhandel und gastronomischen Betrieben. Die zentrale Lage gewährleistet eine gute Erreichbarkeit von Einrichtungen des täglichen Bedarfs, öffentlichen Einrichtungen sowie kulturellen Angeboten. Der Marktplatz, das Rathaus und weitere städtische Einrichtungen befinden sich in unmittelbarer Nähe. Es ist alles fußläufig zu erreichen. Die verkehrliche Erschließung erfolgt über das innerstädtische Straßennetz mit Anbindung an die Bundesstraße B82. Der Bahnhof Goslar ist etwa 1 km entfernt. Der öffentliche Personennahverkehr ist durch mehrere Buslinien gewährleistet. Öffentliche Parkmöglichkeiten sind in fußläufiger Entfernung vorhanden.

Grundrisse

Lageplan

Inhalt wird geladen

Weitere Informationen

Dieses voll vermietete Wohn- und Geschäftshaus in der Innenstadt von Goslar bietet Ihnen eine attraktive Investitionsmöglichkeit mit sofortigen, stabilen Mieteinnahmen. Die Immobilie umfasst 5 Wohneinheiten sowie eine Gewerbeeinheit, die alle ungekündigt vermietet sind und eine zuverlässige Einnahmequelle darstellen. Profitieren Sie von der zentralen Lage, der soliden Bausubstanz und einer angenehmen Hausgemeinschaft. Nutzen Sie die Gelegenheit, Ihr Portfolio mit einem renditestarken Objekt zu erweitern. Kontaktieren Sie uns noch heute telefonisch, um weitere Informationen zu erhalten oder einen Besichtigungstermin zu vereinbaren.

Eine Haftung des Maklers für Angaben und Leistungen Dritter, die im Zusammenhang mit der Immobilie stehen, ist vereinbarungsgemäß aus jedem Rechtsgrund ausgeschlossen. Alle Informationen im Exposé – insbesondere zur Wohnfläche, zum Baujahr, zum Zustand, zur Beschaffenheit und zu möglichen Umweltbelastungen (z. B. Asbest oder Schadstoffe) – stammen ausschließlich vom Eigentümer oder Dritten und wurden vom Makler nicht überprüft. Die beiden Vertragsparteien erkennen an, dass die Firma Kirchhoff Immobilien nicht für Größe, Güte, Beschaffenheit und Zustand des hier angebotenen Objektes haftet.

Die vom Käufer nach Beurkundung des Kaufvertrages an die Firma Kirchhoff Immobilien zu zahlende Provision beträgt 3,57 % inkl. Mehrwertsteuer vom Kaufpreis. Mit dem Verkäufer haben wir einen entgeltpflichtigen Maklervertrag über den gleichen Provisionssatz abgeschlossen.

Noch mehr schöne Häuser und Wohnungen finden Sie unter http://www.kirchhoff-immobilien.de

Kirchhoff Immobilien
Friedrich-Rese-Straße 46
38690 Goslar OT Vienenburg
info@kirchhoff-immobilien.de

Telefonisch erreichen Sie uns unter 05324-717887, 0160-97720773, 0151-15707038.

Preise
Kaufpreis
610.000,00 €
Vermittlungsprovision
Provision
3,57%
Fakten
Objekttyp
Haus
Wohnfläche
305 m²
Nutzfläche
247 m²
Grundfläche
147 m²
Baujahr
1983
Letzte Sanierung
2015
Zustand
gepflegt
Status
verfügbar
Energieeffizienz
Energieausweisart
Energiebedarfsausweis
Endenergiebedarf
174,90 kWh/(m²a)
Energieeffizienzklasse
F
Gebäudeart
wohnen
Baujahr laut Energieausweis
1983
Wesentliche Energieträger
Erdgas, Leicht
Ausstellungsdatum
08.08.2023
Gültig bis
08.08.2033
Jahrgang Ausstellung
ab dem 1.5.2014
Michael Kirchhoff